加古川市加古川町中津 中古戸建
築年数 築6年
総階数2階建
- 加古川町中津
-
- JR山陽本線 加古川 徒歩21分
JR加古川線 日岡 徒歩15分
- JR山陽本線 加古川 徒歩21分
掲載物件4件
| 間取り図 | 階 | 価格 | 間取/面積 | ||
|---|---|---|---|---|---|
|
-
|
600.0万円 |
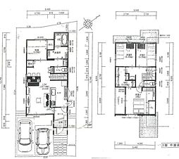
4DK
73.55m2 |
||
|
-
|
1,780.0万円 |
3LDK
88.19m2 |
||
|
-
|
1,800.0万円 |
5DK
114.81m2 |
||
|
-
|
2,980.0万円 |
4LDK
106.82m2 |
||







































































































































































































































































































































































































