万町 中古戸建
築年数 築62年
総階数2階建
- 万町
-
- 南海泉北線 和泉中央 徒歩10分
南海泉北線 光明池 徒歩28分
- 南海泉北線 和泉中央 徒歩10分
掲載物件1件
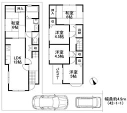
| 間取り図 | 階 | 価格 | 間取/面積 | ||
|---|---|---|---|---|---|
|
-
|
699.0万円 |
6LDK
121.79m2 |
||























































































































































































































































