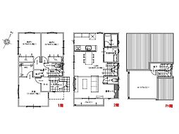
屋上から望む「湘南景色」約20帖超LDK
築年数 築1年
総階数2階建
- 腰越4丁目
-
- 江ノ島電鉄 腰越 徒歩7分
湘南モノレール 湘南江の島 徒歩12分
- 江ノ島電鉄 腰越 徒歩7分
掲載物件1件
| 間取り図 | 階 | 価格 | 間取/面積 | ||
|---|---|---|---|---|---|
|
-
|
5,380.0万円 |
1SLDK
94.39m2 |
||










































































