川口市芝中田2丁目 中古戸建
築年数 築18年
総階数3階建
- 芝中田2丁目
-
- JR京浜東北・根岸線 蕨 徒歩14分
JR京浜東北・根岸線 西川口 徒歩21分
- JR京浜東北・根岸線 蕨 徒歩14分
掲載物件1件
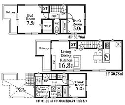
| 間取り図 | 階 | 価格 | 間取/面積 | ||
|---|---|---|---|---|---|
|
-
|
2,680.0万円 |
4LDK
97.99m2 |
||
















































































































































































































































































































































