富士見市上沢3丁目
築年数 築34年
総階数2階建
- 上沢3丁目
-
- 東武東上線 鶴瀬 徒歩17分
掲載物件1件
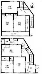
| 間取り図 | 階 | 価格 | 間取/面積 | ||
|---|---|---|---|---|---|
|
-
|
950.0万円 |
2DK
49.68m2 |
||





























































































































































































































































































