鶴ヶ島市鶴ヶ丘 店舗付住宅
築年数 築52年
総階数2階建
- 大字鶴ヶ丘
-
- 東武東上線 鶴ヶ島 徒歩14分
東武東上線 若葉 徒歩31分
- 東武東上線 鶴ヶ島 徒歩14分
掲載物件1件
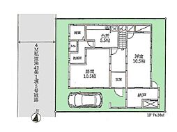
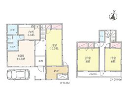
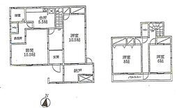
| 間取り図 | 階 | 価格 | 間取/面積 | ||
|---|---|---|---|---|---|
|
-
|
1,080.0万円 |
4K
78.03m2 |
||



























































































































































































































































































































































































