横浜市南区唐沢 石川町駅
築年数 築2年
総階数2階建
- 唐沢
-
- JR京浜東北・根岸線 石川町 徒歩20分
横浜市営地下鉄ブルーライン 阪東橋 徒歩20分
- JR京浜東北・根岸線 石川町 徒歩20分
掲載物件1件
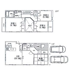
| 間取り図 | 階 | 価格 | 間取/面積 | ||
|---|---|---|---|---|---|
|
-
|
5,380.0万円 |
3LDK
102.44m2 |
||



































































































































































