伏屋町4丁目戸建
築年数 築43年
総階数2階建
- 伏屋町4丁目
-
- 南海泉北線 光明池 徒歩13分
南海泉北線 和泉中央 徒歩26分
- 南海泉北線 光明池 徒歩13分
掲載物件1件
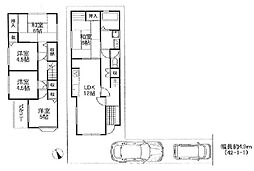
| 間取り図 | 階 | 価格 | 間取/面積 | ||
|---|---|---|---|---|---|
|
-
|
1,680.0万円 |
4LDK
83.22m2 |
||












































































































































































































































































































