即日見学可能 八千代市萱田2期・駅ちかで・収・納・充・実・
築年数 築2年
総階数2階建
- 萱田
-
- 東葉高速鉄道 八千代中央 徒歩8分
掲載物件1件
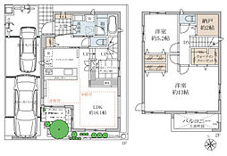
| 間取り図 | 階 | 価格 | 間取/面積 | ||
|---|---|---|---|---|---|
|
-
|
4,580.0万円 |
4LDK
98.12m2 |
||











































































































































































































































































