柏原市「田辺1丁目」一戸建て
築年数 築54年
総階数2階建
- 田辺1丁目
-
- 近鉄大阪線 河内国分 徒歩10分
JR関西本線 高井田 徒歩18分
- 近鉄大阪線 河内国分 徒歩10分
掲載物件1件
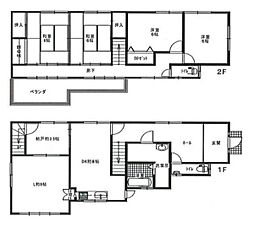
| 間取り図 | 階 | 価格 | 間取/面積 | ||
|---|---|---|---|---|---|
|
-
|
490.0万円 |
5DK
74.27m2 |
||
















































































































































































































































