中古戸建 松原市松ケ丘4丁目
築年数 築25年
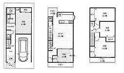
総階数3階建
- 松ケ丘4丁目
-
- 近鉄南大阪線 河内松原 徒歩14分
近鉄南大阪線 高見ノ里 徒歩27分
- 近鉄南大阪線 河内松原 徒歩14分
掲載物件1件
| 間取り図 | 階 | 価格 | 間取/面積 | ||
|---|---|---|---|---|---|
|
-
|
2,780.0万円 |
5LDK
161.94m2 |
||





























































































































































































































