八王子市大谷町 戸建て
築年数 築16年
総階数2階建
- 大谷町
-
- JR八高線 北八王子 徒歩13分
JR中央線 八王子 バス10分団地入口下車 徒歩2分
- JR八高線 北八王子 徒歩13分
掲載物件1件
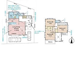
| 間取り図 | 階 | 価格 | 間取/面積 | ||
|---|---|---|---|---|---|
|
-
|
3,499.0万円 |
3LDK
101.64m2 |
||




































































































































































































































































































