 
											中古戸建川口市赤井2丁目
築年数 築8年
総階数2階建
- 赤井2丁目
- 
														- 埼玉高速鉄道 鳩ヶ谷 徒歩20分
 JR京浜東北・根岸線 川口 徒歩62分
 
- 埼玉高速鉄道 鳩ヶ谷 徒歩20分
掲載物件1件
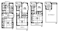
| 間取り図 | 階 | 価格 | 間取/面積 | ||
|---|---|---|---|---|---|
|   | - | 2,980.0万円 | 
															4LDK
																				 90.68m2 | ||





























 
											




























 
											




























 
														




























 
											
 
														











 
											

























 
											




























 
														




























 
														




























 
											




















 
											 
														
















 
											







 
											
