
中古戸建 さいたま市南区別所3丁目
築年数 築32年
総階数2階建
- 別所3丁目
-
- JR埼京線 中浦和 徒歩7分
JR埼京線 武蔵浦和 徒歩14分
- JR埼京線 中浦和 徒歩7分
掲載物件1件
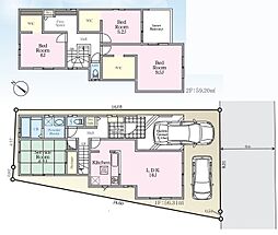
間取り図 | 階 | 価格 | 間取/面積 | ||
---|---|---|---|---|---|
![]() |
-
|
5,980.0万円 |
3LDK
104.12m2 |
||