ロイヤルステージ保土ヶ谷第2
築年数 築30年
総階数5階建
- 桜ケ丘2丁目
-
- 相鉄本線 星川 徒歩15分
JR横須賀線 保土ケ谷 徒歩24分
- 相鉄本線 星川 徒歩15分
掲載物件1件
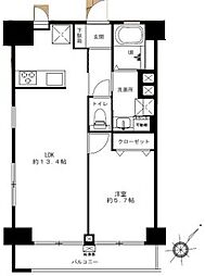
| 間取り図 | 階 | 価格 | 間取/面積 | ||
|---|---|---|---|---|---|
|
3階
|
1,990.0万円 |
2LDK
51.23m2 |
||


























































































































































































































































































































































































































































