メゾンドール瓢箪山 中古マンション
築年数 築17年
総階数12階建
- 四条町
-
- 近鉄奈良線 瓢箪山 徒歩9分
近鉄けいはんな線 新石切 徒歩41分
- 近鉄奈良線 瓢箪山 徒歩9分
掲載物件1件
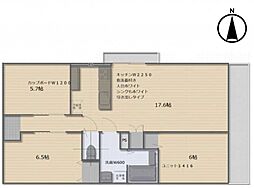
| 間取り図 | 階 | 価格 | 間取/面積 | ||
|---|---|---|---|---|---|
|
3階
|
2,390.0万円 |
4LDK
74.33m2 |
||































































































































































































































































































































































































































