レーベンハイム朝霞台ブレシス
築年数 築21年
総階数11階建
- 宮戸1丁目5-93
-
- 東武東上線 朝霞台 徒歩14分
JR武蔵野線 北朝霞 徒歩13分
- 東武東上線 朝霞台 徒歩14分
掲載物件1件
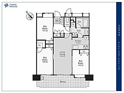
| 間取り図 | 階 | 価格 | 間取/面積 | ||
|---|---|---|---|---|---|
|
4階
|
3,740.0万円 |
3LDK
88.51m2 |
||














































































































































































































































































































































































































