アルファスイート浦和本太フォレスト
築年数 築19年
総階数9階建
- 本太1丁目3-3
-
- JR京浜東北・根岸線 浦和 徒歩9分
JR京浜東北・根岸線 南浦和 徒歩25分
- JR京浜東北・根岸線 浦和 徒歩9分
掲載物件1件
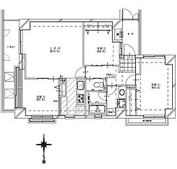
| 間取り図 | 階 | 価格 | 間取/面積 | ||
|---|---|---|---|---|---|
|
2階
|
3,480.0万円 |
1DK
38.84m2 |
||












































































































































































































































































































































































































































