川本借家
築年数 築47年
総階数2階建
- 口田南1丁目
-
- JR芸備線 安芸矢口 徒歩19分
掲載物件1件
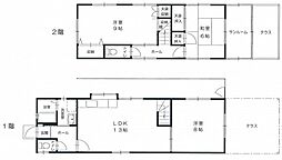
| 間取り図 | 階 | 賃料/管理費等 | 敷金/礼金 | 間取/面積 | |
|---|---|---|---|---|---|
|
-
|
5.0万円 0円 |
敷15.0万円 礼0.0万円 |
3DK
56.31m2 |
|































































































































































































































































































































































































































































































































