紫野上門前町貸家
築年数 築67年
総階数1階建
- 紫野上門前町
-
- 京都市営烏丸線 北大路 徒歩13分
京都市営烏丸線 鞍馬口 徒歩22分
- 京都市営烏丸線 北大路 徒歩13分
掲載物件3件
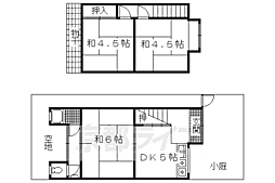
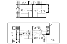
| 間取り図 | 階 | 賃料/管理費等 | 敷金/礼金 | 間取/面積 | |
|---|---|---|---|---|---|
|
-
|
4.5万円 0円 |
敷4.5万円 礼10.0万円 |
3K
64.79m2 |
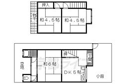
|
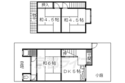
|
-
|
4.5万円 0円 |
敷4.5万円 礼10.0万円 |
3K
64.79m2 |
|
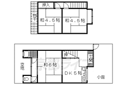
|
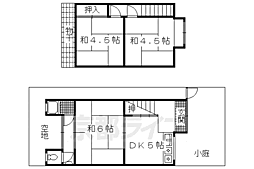
-
|
4.5万円 0円 |
敷4.5万円 礼10.0万円 |
3K
64.79m2 |
|
























































































































































































































































































































































































































































































































































































































































































































































































































































































