一乗寺貸家
築年数 築52年
総階数2階建
- 一乗寺木ノ本町3-12
-
- 叡山電鉄叡山本線 一乗寺 徒歩8分
叡山電鉄叡山本線 茶山・京都芸術大学 徒歩8分
- 叡山電鉄叡山本線 一乗寺 徒歩8分
掲載物件1件
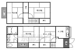
| 間取り図 | 階 | 賃料/管理費等 | 敷金/礼金 | 間取/面積 | |
|---|---|---|---|---|---|
|
-
|
5.5万円 0円 |
敷5.5万円 礼5.5万円 |
3K
40.72m2 |
|





























































































































































































































































































































































































































































































































































































































































































































































































