永山4-15貸家
築年数 築57年
総階数1階建
- 永山四条15丁目
-
- JR函館本線 旭川 徒歩119分
JR宗谷本線 永山 徒歩19分
- JR函館本線 旭川 徒歩119分
掲載物件3件
| 間取り図 | 階 | 賃料/管理費等 | 敷金/礼金 | 間取/面積 | |
|---|---|---|---|---|---|
|
-
|
5.0万円 0円 |
敷5.0万円 礼0.0万円 |
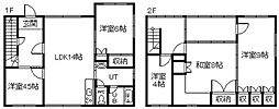
3LDK
57.83m2 |
|
|
1階
|
5.0万円 0円 |
敷5.0万円 礼0.0万円 |
3LDK
57.83m2 |
|
|
-
|
6.0万円 0円 |
敷6.0万円 礼0.0万円 |
4LDK
148.8m2 |
|














































































































