ルミエールMII
築年数 築22年
総階数2階建
- 和田2102-1
-
- 多摩都市モノレール 大塚・帝京大学 徒歩12分
京王線 聖蹟桜ヶ丘 バス7分愛宕団地下車 徒歩3分
- 多摩都市モノレール 大塚・帝京大学 徒歩12分
掲載物件1件
| 間取り図 | 階 | 賃料/管理費等 | 敷金/礼金 | 間取/面積 | |
|---|---|---|---|---|---|
|
2階
|
7.8万円 3,000円 |
敷7.8万円 礼7.8万円 |
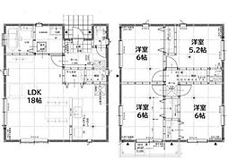
1LDK
43.47m2 |
|
















































































































































































































































