ベアーレ
築年数 築21年
総階数2階建
- 櫛引町2丁目
-
- JR京浜東北・根岸線 大宮 バス10分自衛隊入り口下車 徒歩2分
埼玉新都市交通 鉄道博物館(大成) 徒歩16分
- JR京浜東北・根岸線 大宮 バス10分自衛隊入り口下車 徒歩2分
掲載物件1件
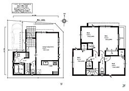
| 間取り図 | 階 | 賃料/管理費等 | 敷金/礼金 | 間取/面積 | |
|---|---|---|---|---|---|
|
1階
|
7.6万円 3,000円 |
敷0.0万円 礼0.0万円 |
2DK
52.99m2 |
|









































































































































































































































































































































































