清水戸建て
築年数 築46年
総階数1階建
- 新堀323-2
-
- JR高崎線 籠原 徒歩11分
掲載物件1件
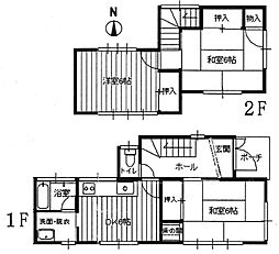
| 間取り図 | 階 | 賃料/管理費等 | 敷金/礼金 | 間取/面積 | |
|---|---|---|---|---|---|
|
1階
|
4.0万円 0円 |
敷0.0万円 礼0.0万円 |
3DK
48.86m2 |
|





























