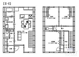
フラットフィールド E棟
築年数 築1年
総階数2階建
- 神辺町字平野126-8
-
- 井原鉄道 湯野 徒歩12分
JR福塩線 神辺 徒歩21分
- 井原鉄道 湯野 徒歩12分
掲載物件1件
| 間取り図 | 階 | 賃料/管理費等 | 敷金/礼金 | 間取/面積 | |
|---|---|---|---|---|---|
|
1階
|
8.9万円 3,000円 |
敷0.0万円 礼0.0万円 |
3LDK
68.72m2 |
|


























































































































































































































































































































































































































































































































































































































































































































































