テラスハウス 森本町薮路52-48
築年数 築59年
総階数2階建
- 森本町薮路52-48
-
- 阪急京都本線 西向日 徒歩14分
JR東海道・山陽本線 向日町 徒歩14分
- 阪急京都本線 西向日 徒歩14分
掲載物件1件
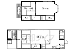
| 間取り図 | 階 | 賃料/管理費等 | 敷金/礼金 | 間取/面積 | |
|---|---|---|---|---|---|
|
-
|
5.3万円 2,000円 |
敷0.0万円 礼5.3万円 |
3DK
41.68m2 |
|


























































































































































































































































































