
Kolet大田北糀谷
築年数 築4年
総階数3階建
- 北糀谷1丁目12-1
-
- 京急本線 梅屋敷 徒歩14分
京急本線 大森町 徒歩16分
- 京急本線 梅屋敷 徒歩14分
掲載物件4件
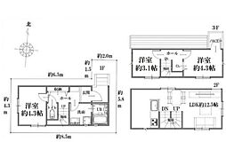
間取り図 | 階 | 賃料/管理費等 | 敷金/礼金 | 間取/面積 | |
---|---|---|---|---|---|
![]() |
1階
|
28.8万円 0円 |
敷28.8万円 礼28.8万円 |
3SLDK
107.2m2 |
|
![]() |
-
|
28.8万円 0円 |
敷28.8万円 礼28.8万円 |
3SLDK
107.2m2 |
|
![]() |
1階
|
28.8万円 0円 |
敷28.8万円 礼28.8万円 |
3SLDK
107.2m2 |
|
![]() |
1階
|
28.8万円 0円 |
敷28.8万円 礼28.8万円 |
3SLDK
107.2m2 |
|