湯倉団地2号棟
築年数 築47年
総階数7階建
- 日吉町1丁目6-3
-
- 函館市電5系統 湯の川 徒歩12分
掲載物件4件
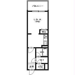
| 間取り図 | 階 | 賃料/管理費等 | 敷金/礼金 | 間取/面積 | |
|---|---|---|---|---|---|
|
4階
|
3.0万円 5,000円 |
敷0.0万円 礼3.0万円 |
2LDK
56.2m2 |
|
|
4階
|
3.0万円 5,000円 |
敷0.0万円 礼3.0万円 |
2LDK
53m2 |
|
|
4階
|
3.0万円 5,000円 |
敷0.0万円 礼3.0万円 |
2LDK
53m2 |
|
|
4階
|
3.0万円 5,000円 |
敷0.0万円 礼3.0万円 |
2LDK
53m2 |
|


































































































































































































































































































































































































































































































































































































































































































































































































































































































































































































