浜の宮ビル
築年数 築56年
総階数4階建
- 尾上町口里
-
- 山陽電鉄本線 浜の宮 徒歩5分
山陽電鉄本線 尾上の松 徒歩21分
- 山陽電鉄本線 浜の宮 徒歩5分
掲載物件3件
| 間取り図 | 階 | 賃料/管理費等 | 敷金/礼金 | 間取/面積 | |
|---|---|---|---|---|---|
|
2階
|
3.0万円 1,000円 |
敷0.0万円 礼0.0万円 |
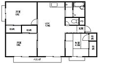
1DK
34m2 |
|
|
2階
|
3.0万円 1,000円 |
敷0.0万円 礼0.0万円 |
1DK
34m2 |
|
|
2階
|
3.0万円 1,000円 |
敷0.0万円 礼0.0万円 |
1DK
34m2 |
|







































































































































































































































































































































































































































































































































































































































