Porta Grande
築年数 築32年
総階数4階建
- 伊福町1丁目
-
- JR山陽本線 岡山 徒歩11分
JR赤穂線 岡山 徒歩11分
- JR山陽本線 岡山 徒歩11分
掲載物件4件
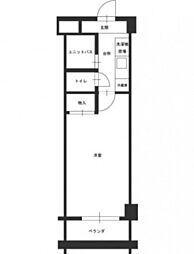
| 間取り図 | 階 | 賃料/管理費等 | 敷金/礼金 | 間取/面積 | |
|---|---|---|---|---|---|
|
1階
|
3.8万円 3,000円 |
敷3.8万円 礼3.8万円 |
1K
20.09m2 |
|
|
1階
|
3.8万円 3,000円 |
敷3.8万円 礼3.8万円 |
1R
23m2 |
|
|
1階
|
3.8万円 3,000円 |
敷3.8万円 礼3.8万円 |
1R
23m2 |
|
|
1階
|
3.8万円 3,000円 |
敷3.8万円 礼3.8万円 |
1R
23m2 |
|



























































































































































































































































































































































































































































































































































































































































