ハイラーク香椎
築年数 築33年
総階数11階建
- 千早3丁目
-
- 西鉄貝塚線 西鉄千早 徒歩8分
JR鹿児島本線 千早 徒歩9分
- 西鉄貝塚線 西鉄千早 徒歩8分
掲載物件1件
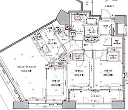
| 間取り図 | 階 | 賃料/管理費等 | 敷金/礼金 | 間取/面積 | |
|---|---|---|---|---|---|
|
5階
|
13.0万円 0円 |
敷26.0万円 礼13.0万円 |
3LDK
59.06m2 |
|























































































































































































































































































































































































































































































































