サンリヤンアネックス貝塚
築年数 築21年
総階数8階建
- 箱崎7丁目
-
- 福岡市地下鉄箱崎線 貝塚 徒歩10分
西鉄貝塚線 貝塚 徒歩10分
- 福岡市地下鉄箱崎線 貝塚 徒歩10分
掲載物件1件
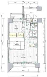
| 間取り図 | 階 | 賃料/管理費等 | 敷金/礼金 | 間取/面積 | |
|---|---|---|---|---|---|
|
3階
|
12.5万円 10,000円 |
敷0.0万円 礼12.5万円 |
4LDK
86.16m2 |
|





































































































































































































































































































































































































































































































