グランドメゾン加島
築年数 築26年
総階数4階建
- 加島新田南田面
-
- 名鉄犬山線 上小田井 徒歩7分
名鉄犬山線 西春 徒歩26分
- 名鉄犬山線 上小田井 徒歩7分
掲載物件2件
| 間取り図 | 階 | 賃料/管理費等 | 敷金/礼金 | 間取/面積 | |
|---|---|---|---|---|---|
|
2階
|
8.2万円 4,200円 |
敷0.0万円 礼0.0万円 |
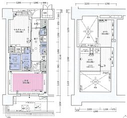
2LDK
66.15m2 |
|
|
2階
|
8.2万円 4,200円 |
敷0.0万円 礼0.0万円 |
2LDK
66.15m2 |
|































































































































































































































































































































































































































































































