長岡コーポ
築年数 築42年
総階数4階建
- 天神4丁目
-
- 阪急京都本線 長岡天神 徒歩7分
JR東海道・山陽本線 長岡京 徒歩17分
- 阪急京都本線 長岡天神 徒歩7分
掲載物件2件
| 間取り図 | 階 | 賃料/管理費等 | 敷金/礼金 | 間取/面積 | |
|---|---|---|---|---|---|
|
2階
|
8.1万円 6,000円 |
敷15.0万円 礼0.0万円 |
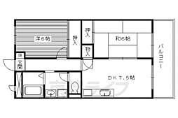
3LDK
58.64m2 |
|
|
2階
|
8.1万円 6,000円 |
敷0.0万円 礼0.0万円 |
3DK
58.64m2 |
|






































































































































































































































































































































































































































































































































