ティムール九条
築年数 築19年
総階数7階建
- 東九条河西町
-
- 京都市営烏丸線 九条 徒歩9分
京都市営烏丸線 京都 徒歩12分
- 京都市営烏丸線 九条 徒歩9分
掲載物件4件
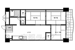
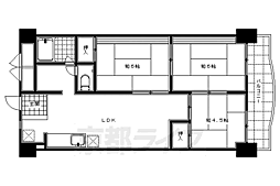
| 間取り図 | 階 | 賃料/管理費等 | 敷金/礼金 | 間取/面積 | |
|---|---|---|---|---|---|
|
5階
|
6.5万円 8,500円 |
敷0.0万円 礼0.0万円 |
1K
26.1m2 |
|
|
5階
|
6.5万円 8,500円 |
敷0.0万円 礼0.0万円 |
1K
26.1m2 |
|
|
5階
|
6.5万円 8,500円 |
敷0.0万円 礼0.0万円 |
1K
26.1m2 |
|
|
3階
|
6.6万円 11,000円 |
敷0.0万円 礼6.6万円 |
1K
25.92m2 |
|
































































































































































































































































































































































































































































































































































































































































































































































































































































































































































































































































































