THE RESIDENCE 文化庁前
築年数 築1年
総階数5階建
- 下立売通室町西入東立売町
-
- 京都市営烏丸線 丸太町 徒歩7分
京都市営烏丸線 烏丸御池 徒歩15分
- 京都市営烏丸線 丸太町 徒歩7分
掲載物件4件
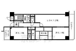
| 間取り図 | 階 | 賃料/管理費等 | 敷金/礼金 | 間取/面積 | |
|---|---|---|---|---|---|
|
1階
|
12.0万円 10,000円 |
敷0.0万円 礼24.0万円 |
1LDK
42.14m2 |
|
|
1階
|
12.0万円 10,000円 |
敷0.0万円 礼24.0万円 |
1LDK
41.73m2 |
|
|
1階
|
12.0万円 10,000円 |
敷0.0万円 礼24.0万円 |
1LDK
42.14m2 |
|
|
1階
|
12.0万円 10,000円 |
敷0.0万円 礼24.0万円 |
1LDK
42.14m2 |
|









































































































































































































































































































































































































































































































































































































































































































































































































































































































































































































































































































































