ベルウッド
築年数 築33年
総階数3階建
- 菅5丁目16-14
-
- 京王相模原線 京王稲田堤 徒歩8分
JR南武線 稲田堤 徒歩11分
- 京王相模原線 京王稲田堤 徒歩8分
掲載物件2件
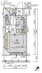
| 間取り図 | 階 | 賃料/管理費等 | 敷金/礼金 | 間取/面積 | |
|---|---|---|---|---|---|
|
1階
|
9.0万円 3,000円 |
敷9.0万円 礼0.0万円 |
2LDK
49.5m2 |
|
|
1階
|
9.0万円 3,000円 |
敷9.0万円 礼0.0万円 |
2LDK
49.5m2 |
|































































































































































































































































































































































































































































































