
ブライトンパーク
築年数 築33年
総階数3階建
- 廻田町1丁目25-32
-
- 西武多摩湖線 武蔵大和 徒歩14分
西武西武園線 西武園 徒歩22分
- 西武多摩湖線 武蔵大和 徒歩14分
掲載物件1件
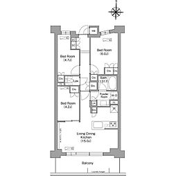
間取り図 | 階 | 賃料/管理費等 | 敷金/礼金 | 間取/面積 | |
---|---|---|---|---|---|
![]() |
3階
|
9.9万円 6,000円 |
敷0.0万円 礼12.0万円 |
4K
74.07m2 |
|