エクセレントシティ瑞江レジデンス
築年数 築2年
総階数6階建
- 南篠崎町2丁目31-11
-
- 都営新宿線 瑞江 徒歩9分
都営新宿線 篠崎 徒歩25分
- 都営新宿線 瑞江 徒歩9分
掲載物件3件
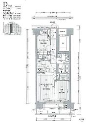
| 間取り図 | 階 | 賃料/管理費等 | 敷金/礼金 | 間取/面積 | |
|---|---|---|---|---|---|
|
4階
|
18.8万円 10,000円 |
敷37.6万円 礼18.8万円 |
2SLDK
62.16m2 |
|
|
4階
|
18.8万円 10,000円 |
敷37.6万円 礼18.8万円 |
2SLDK
62.16m2 |
|
|
4階
|
18.8万円 10,000円 |
敷37.6万円 礼18.8万円 |
2SLDK
62.16m2 |
|

























































































































































































































































































































































































































































































































































