S-FORT船橋本町
築年数 築18年
総階数11階建
- 本町2丁目
-
- JR総武線 船橋 徒歩8分
JR京葉線 南船橋 徒歩28分
- JR総武線 船橋 徒歩8分
掲載物件4件
| 間取り図 | 階 | 賃料/管理費等 | 敷金/礼金 | 間取/面積 | |
|---|---|---|---|---|---|
|
1階
|
7.7万円 8,000円 |
敷0.0万円 礼0.0万円 |
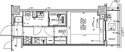
1K
24.68m2 |
|
|
1階
|
7.7万円 8,000円 |
敷0.0万円 礼0.0万円 |
1K
24.68m2 |
|
|
5階
|
8.1万円 8,000円 |
敷0.0万円 礼0.0万円 |
1K
24.68m2 |
|
|
5階
|
8.1万円 8,000円 |
敷0.0万円 礼0.0万円 |
1K
24.68m2 |
|






















































































































































































































































































































































































































































































































































