キー スリー ピア III
築年数 築4年
総階数3階建
- 中央4丁目2-4
-
- つくばエクスプレス 三郷中央 徒歩10分
掲載物件1件
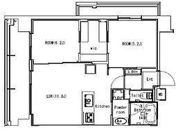
| 間取り図 | 階 | 賃料/管理費等 | 敷金/礼金 | 間取/面積 | |
|---|---|---|---|---|---|
|
2階
|
13.5万円 9,000円 |
敷0.0万円 礼13.5万円 |
1LDK
46.83m2 |
|
































































































































































































