みどりハイツ
築年数 築38年
総階数3階建
- 大津新崎町5丁目
-
- 一畑電車北松江線 大津町 バス0分徒歩6分
JR山陰本線 出雲市 徒歩19分
- 一畑電車北松江線 大津町 バス0分徒歩6分
掲載物件4件
| 間取り図 | 階 | 賃料/管理費等 | 敷金/礼金 | 間取/面積 | |
|---|---|---|---|---|---|
|
2階
|
2.8万円 2,000円 |
敷5.6万円 礼2.8万円 |
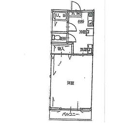
1K
22.4m2 |
|
|
2階
|
2.8万円 2,000円 |
敷5.6万円 礼2.8万円 |
1K
22.4m2 |
|
|
3階
|
2.8万円 2,000円 |
敷5.6万円 礼2.8万円 |
1K
22.4m2 |
|
|
3階
|
2.8万円 2,000円 |
敷5.6万円 礼2.8万円 |
1K
22.4m2 |
|





























































































































































































































