ヨーロピアン15番館
築年数 築37年
総階数2階建
- 八幡科手
-
- 京阪本線 ケーブル八幡宮口 徒歩3分
京阪本線 樟葉 徒歩59分
- 京阪本線 ケーブル八幡宮口 徒歩3分
掲載物件4件
| 間取り図 | 階 | 賃料/管理費等 | 敷金/礼金 | 間取/面積 | |
|---|---|---|---|---|---|
|
1階
|
3.2万円 2,000円 |
敷0.0万円 礼0.0万円 |
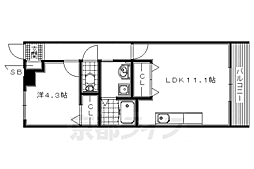
1K
21.87m2 |
|
|
1階
|
3.2万円 2,000円 |
敷0.0万円 礼0.0万円 |
1K
18m2 |
|
|
1階
|
3.2万円 2,000円 |
敷0.0万円 礼0.0万円 |
1K
21.87m2 |
|
|
2階
|
3.5万円 2,000円 |
敷0.0万円 礼0.0万円 |
1K
21.87m2 |
|






















































































































































































































































































































































































































































































































































































































































































































































































