ユニメント大嶋
築年数 築41年
総階数2階建
- 吉祥院中河原里北町
-
- JR東海道・山陽本線 西大路 徒歩10分
阪急京都本線 西京極 徒歩20分
- JR東海道・山陽本線 西大路 徒歩10分
掲載物件4件
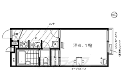
| 間取り図 | 階 | 賃料/管理費等 | 敷金/礼金 | 間取/面積 | |
|---|---|---|---|---|---|
|
1階
|
3.1万円 2,000円 |
敷0.0万円 礼0.0万円 |
1K
19m2 |
|
|
1階
|
3.1万円 2,000円 |
敷0.0万円 礼0.0万円 |
1K
19m2 |
|
|
1階
|
3.1万円 2,000円 |
敷0.0万円 礼0.0万円 |
1K
19m2 |
|
|
1階
|
3.1万円 2,000円 |
敷0.0万円 礼0.0万円 |
1K
19m2 |
|




































































































































































































































































































































































































































































































































































































































































































































































































































































































































































































































































































