エスポワール2(沼)
築年数 築17年
総階数2階建
- 沼4丁目159番
-
- JR関西本線 柏原 徒歩25分
近鉄道明寺線 柏原 徒歩25分
- JR関西本線 柏原 徒歩25分
掲載物件2件
| 間取り図 | 階 | 賃料/管理費等 | 敷金/礼金 | 間取/面積 | |
|---|---|---|---|---|---|
|
1階
|
6.5万円 3,500円 |
敷0.0万円 礼6.5万円 |
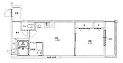
2LDK
55.17m2 |
|
|
1階
|
6.5万円 3,500円 |
敷0.0万円 礼6.5万円 |
2LDK
55.17m2 |
|














































































































































































































































































































































































































































































































































































































































































































































