
セレスト自由が丘
築年数 築3年
総階数2階建
- 中根1丁目17-16
-
- 東急東横線 自由が丘 徒歩11分
東急東横線 都立大学 徒歩9分
- 東急東横線 自由が丘 徒歩11分
掲載物件1件
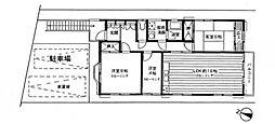
間取り図 | 階 | 賃料/管理費等 | 敷金/礼金 | 間取/面積 | |
---|---|---|---|---|---|
![]() |
1階
|
21.0万円 9,000円 |
敷0.0万円 礼42.0万円 |
2LDK
50.52m2 |
|